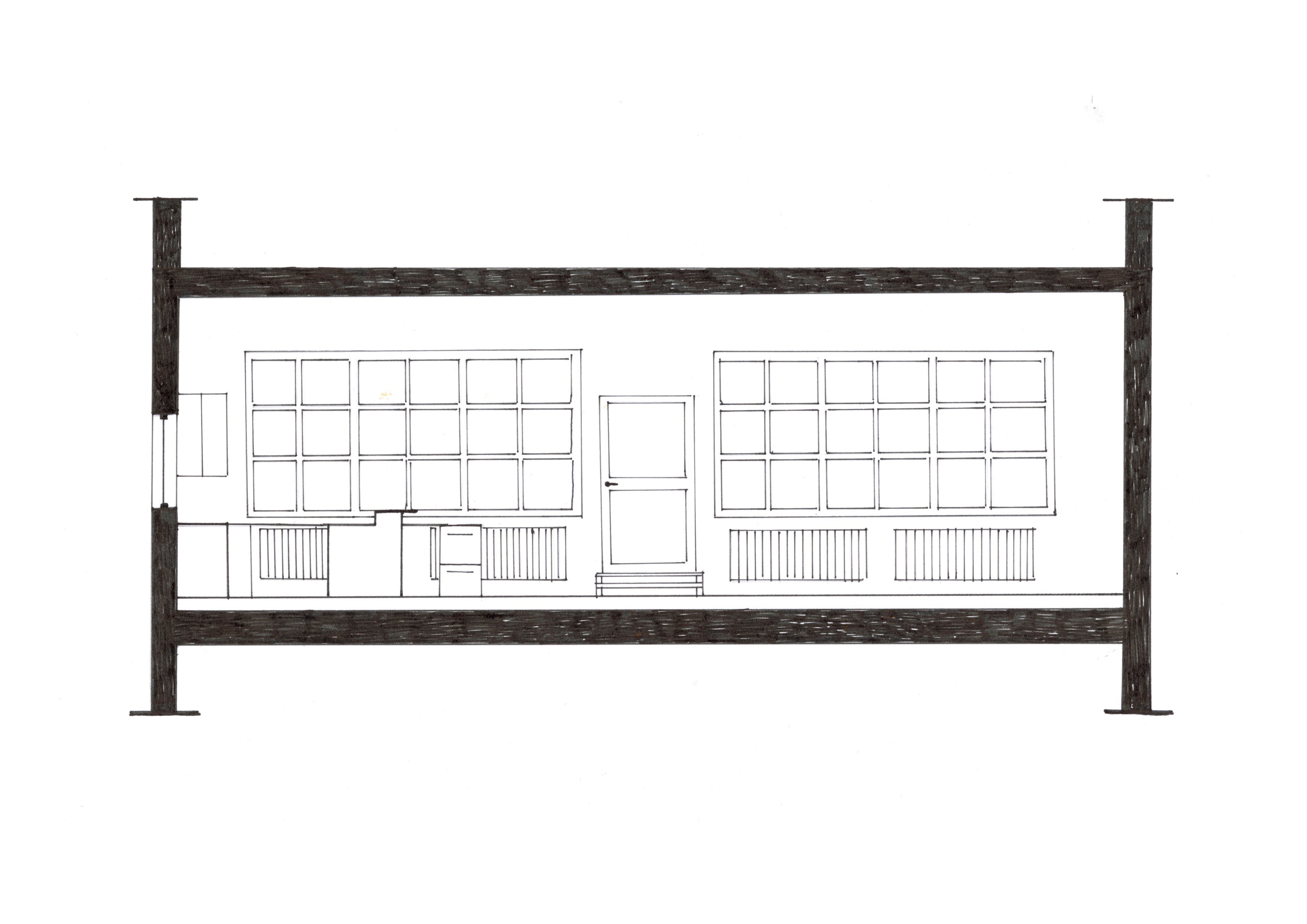
Julia Jonsson: Mitt barndomshem
Ett projekt där vi endast fick ta hjälp av minnet att återskapa vårt barndomshem. Vi skissade på papper först och sedan byggde vi en modell i kapaskiva i skala 1:50. Därefter fick vi testa på att göra en sektionsritning och planritning av modellen där vi utgick ifrån vår modell.




